45 McFarlane Street, Ōakura, Taranaki, 4314

Sold

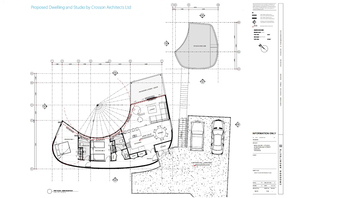
Rare Opportunity: Section and Architectural Plans

Imagine stepping into your own private sanctuary. This peaceful retreat is nestled in the heart of the charming seaside village of Oakura, on the sought-after sea side of Surf Highway 45. Enjoy the sounds of birdsong and the beauty of native trees, all just a short stroll from the beach and local amenities.

This isn’t just a section of land; it’s a pre-planned dream with two sets of optional architectural plans and reports at hand. The vendors have done the hard work for you, providing a significant head start on your building project. These plans, crafted by two of New Zealand’s most reputable architects, Arcline Architecture and Ken Crosson Architects, offer thoughtful and award-winning designs.

All necessary technical reports—including a site survey, engineering, stormwater appraisal, geotechnical, and structural design—have been completed, and the plans have had prior consent approvals. You can save considerable time and effort while gaining certainty about what can be built here. Both sets of plans are ready-to-build and can be adjusted to suit your needs, or you can use the section as a blank canvas to design your own home.

Oakura is a highly desirable community for families, professionals, and retirees alike. It features cafes, restaurants, a supermarket, parks, and the famous Butlers Reef. Kids can enjoy the local skatepark, surf lessons, and a lifesaving club, while the primary school is just a short walk away.

This is a prime opportunity to secure a well-located section with the advantage of professional architectural plans and reports to make the building process easier and smoother. Contact Jarred to learn more and to arrange a tour.


Property Details
Property Type: Residential
Land Area: 1137 SQM

Property Location